Сухой трансформатор ТСЛ 1600/10/0,4/IP00/Dy-h11/AL с литой изоляцией
ООО "Востокэнерготранс" (Казань)
Страна производитель:
Россия
Фирма производитель:
Востокэнерготранс ООО
Скидки посетителям портала:
По договоренности
Условия оплаты:
Безналичный расчет
Условия доставки:
Доставка по России
Срок актуальности:
до 24.09.2026
Описание
Работа напрямую с производителем Востокэнерготранс вы покупаете надежный и высокотехнологичный товар, а так же значительно экономите на покупке.
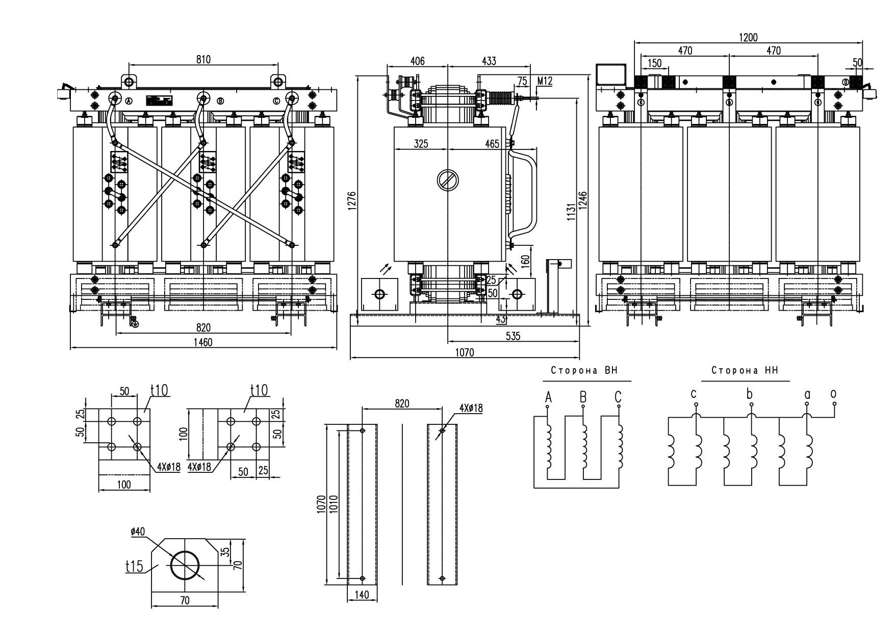
Характеристики трансформатора сухого типа с литой изоляцией 1600 квА:
• Тип: ТСЗЛ (трехфазный, сухого типа, защищённый с литой изоляцией)
• Концепция конструкции: Стержневой;
• Номинальная мощность, кВа: 1600;
• Номинальное напряжение на стороне ВН, кВ: 10;
• Номинальное напряжение на стороне НН, кВ: 0.4;
• Материал обмотки: Алюминий;
• Напряжение короткого замыкания Uкз%: 6;
• Частота питающей сети, Гц: 50;
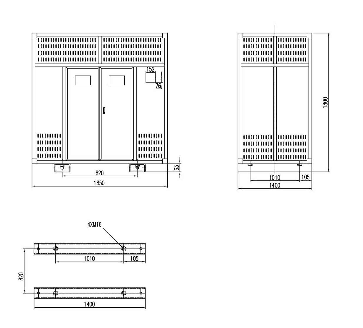
• Степень защиты кожуха (корпус): IP00;
• Переключение без возбуждения (ПБВ), %: ±2×2,5;
• Схема и группа соединения обмоток: D/Yн-11 (треугольник-звезда);
• Уровень шума дB (A): Менее 70;
• Охлаждение: Естественное AN/AF;
• Высота установки над уровнем моря, м: До 1000;
• Потери холостого хода (120°C) ± 15%, Вт: 2450;
• Потери короткого замыкания (120°C) ± 15%, Вт: 11730;
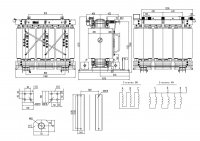
• Габариты трансформатора, мм: 1460*1070*1246;
• Колея колес (или опор), мм: 820*1010;
• Вес трансформатора без кожуха, кг: 2955;
• Климатическое исполнение: УХЛЗ;
• Тип ввода ВН: Шина.
Типовая комплектация трансформаторов ТСЛ 1600 квА:
• Вентиляторы ;
• Цифровой блок температурного контроля BWDK с терморегулятором и датчиком температуры обмоток (3 -4шт) выполняющий роль шкафа тепловой защиты;
• Трансформатор;
• Транспортные колёса — ролики;
• Паспорт на трансформатор;
• Сертификат сейсмостойкости (до 9 баллов);
• Сертификат соответствия ГОСТ Р12.1.004-91 «Система стандартов безопасности труда. Пожарная безопасность».
Гарантийные обязательства 60 месяцев с момента передачи товара покупателю.
Чертеж сухого трансформатора ТСЛ 1600 ква с литой изоляцией прилагается. Купить сухой трансформатор 1600 ква с литой изоляцией у производителя Востокэнерготранс.



